图纸生成


本节内容详见视频:https://pan.baidu.com/s/1fHKve0QbqeyjCp2roow_YQ  提取码:lsa3

主要介绍包含了以下几个部分:

A. 生成的图块(detail block))和图纸(sheet)  在浏览器中的显示状态:灰色代表未生成任何,蓝色代表已生成图块,黄色代表生成图块后图发生了变化,绿色代表已生成了图纸或插入了图块,红色代表生成图纸后图发生了变化

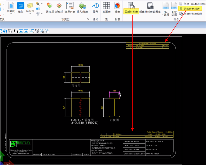
B. 图纸的内容和修改:图纸材料表和组构件表自动生成,双击查看编辑图框,解锁修改图纸中内容