Allowable Bending Stress


Introduction

When performing a member code check analysis, some reported allowable stresses may appear incorrect.This post will show how the apparent increase in allowable stresses are calculated, and how they are related to the critical unity check calculation. We will look at the allowable bending stress calculation in the AISC 13th design code as an example.

AISC 13th Allowable Bending Stress Calculation

In the AISC check for rectangular bars (i.e. Prismatic Sections), the moment capacity Mn is based upon the plastic moment capacity of the member. The calculation is simplified if the members which are not subject to lateral torsional buckling where Lb . d / t2 ≤ 0.08 . E / fy (F11-1) and the capacity is simply the plastic moment capacity of the member without any reductions (Mp = Fy . Zy). In this scenario, the allowable bending stress would be calculated as Fb = Mp / Sy where Sy is the section modulus. The ratio of the allowable bending stress to the allowable axial tension stress would be Zy / Sy or the ratio of the plastic section modulus to the elastic section modulus. Of course, these ratios can change depending on the slenderness of the member.

SACS Example

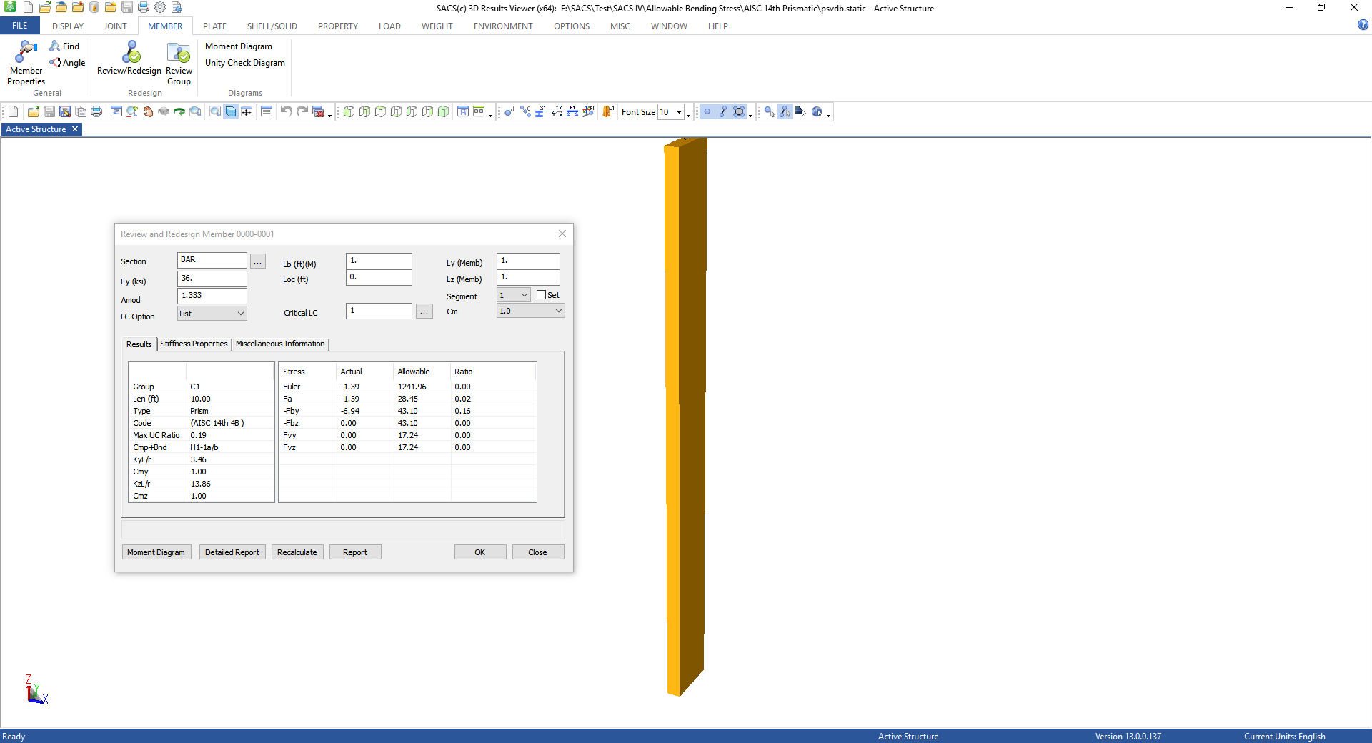
Let's take a look at the following simple example in SACS.

We have a 12"x3" prismatic section with an unbraced length of 1 ft, so it won't be subject to any lateral torsional buckling. I've used the section property calculations provided in the back of the AISC manual for rectangular sections.

 

Sy = bd2 / 6 = 3in . (12in)2 / 6 = 72 in3

 

Zy = bd2 / 4 = 3in . (12in)2 / 4 = 108 in3

 

Zy / Sy = 108 in 3 / 72 in 3 = 1.5

 

Ft = Fy / Ωt = 36 ksi / 1.67 = 21.5569 ksi

 

Fb = AMOD · Ft · Zy / Sy = 1.33 · 21.5569 ksi · 1.5 = 43.10 ksi
 

As you can see, the reported allowable bending stress is indeed the ratio of plastic section modulus to the elastic section modulus multiplied by the allowable stress modifier and the allowable tensile stress.

Conclusion

The allowable stresses may be modified by additional factors which are derived from the relevant critical unity check calculation. The relevant equations used to determine the reported allowable stresses are listed in the detailed report and listing file. If you are having trouble determining where an allowable stress value is coming from, be sure to check the relevant equations that are reported in those documents.