How to design a jacketed vessel in AutoPIPE Vessel?


Applies To    
Product(s): AutoPIPE Vessel  
Version(s): All  
Area: Modeling  
Original Author: Bentley Technical Support Group  

Problem:

How to design a jacketed vessel in AutoPIPE Vessel?

Solution:

Logged November 2014:

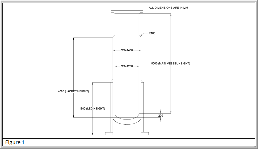
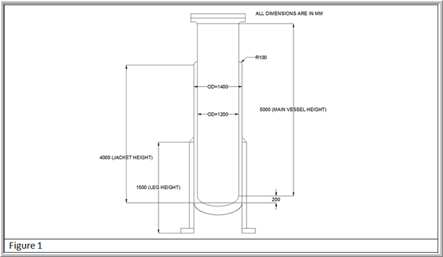
A vertical partially jacketed vessel on legs would be modeled as shown in Figure 1:

The jacket main shell is 1200 mm OD, length 5,000 mm and has a jacket with 1400 mm OD and length 4,000 mm and a 90 deg. jacket closure of radius 100 mm. The jacket starts at 200 mm below the lower tangent line of the main vessel. Once the jacket design is completed, several operations would be performed to demonstrate how to adjust the dimensions of the various components. The vessel is supported on 1500 mm long legs and is flanged at the top.

Step 1.

Select the option “Partially jacketed Vessel on Legs, topped with bolted flange”.

Figure 2

Enter data into the Vessel Properties field. In the Design Conditions tab (Figure 3) the Chamber 1 is for the design condition of jacket (1) and chamber 2 is for the design conditions of the main vessel which has the jacket around it (2). If an external pressure in the chamber 2 exists (4), the value of the external pressure on chamber 2 to be input must be the sum of the external pressure due to the internal pressure of the double jacket plus the external pressure of this chamber. Since the internal design pressure of jacket would be exerted on the chamber 2 as external pressure, eg. as shown in (4), there is an external pressure 0.75 MPa due to internal pressure of jacket (chamber 1) and 0.1013 MPa due to vacuum pressure hence the total external design pressure for chamber 2 = (0.75 + 0.1013) = 0.8513 MPa. Chamber 3 (3) is for the part of the main vessel which is above the jacketed portion of the shell. It is not subjected to the internal design conditions of chamber 1 as external pressure since it is not covered by the jacket. This part (chamber 3 - which is not jacketed) is created in AutoPIPE Vessel to distinguish it from the part of the vessel (chamber 2 – jacketed portion) that is subjected to the external pressure equal to the internal pressure in chamber 1 (jacket).

 

Figure 3

Step 2.

In the Geometry field (Figure 4) enter the following values:

Figure 4

Step 3.

After completing the vessel properties dialog box, the model is ready for further design

Figure 5

Step 4.

Double click on the Sealer Jacket Closure from the Component List (Figure 6):

Figure 6

Observe that the Radius has a calculated value of 100 mm which is because the OD of the jacket and vessel are 1400 mm and 1200 mm respectively. Apex angle is 90 degree, which can be changed when needed. Click OK. This completes the jacket vessel model. Save and run the file to perform the calculations.

Figure 7

 NOTE - Open the Vessel Properties dialog box and open the Geometry tab (Figure 8), observe that the Location field is active and the value has changed from 200 to -3800 mm.

Figure 8

This value (200-4000 = -3800 mm) indicate the location of the main vessel bottom tangent line from the top end of the jacket (negative because it is at a lower elevation than the jacket top).

Figure 9

Change this value to -2500 mm. Observe that the main vessel (Figure 10) is now elevated since the distance between the top end of the jacket (whose elevation is fixed) and the lower tangent line of the main vessel is reduced to 2500 mm. 

Figure 10

...

Figure 11

However, now the chamber 3 (above Ref[3] line) has to be adjusted to cover the entire section of the vessel which is above the jacket (since chamber 3 denotes only the part of the main vessel which is not wrapped by the jacket). Double click on the shell for chamber 2 and reduce its length by (3800 - 2500) = 1300 mm, hence enter a value of (4000 – 1300) = 2700 mm for tag 31.07 (Figure 11).

 

Figure 12

Observe that the chamber 3 (above Ref [3] line) is now aligned with the level of the jacket top junction to the main shell (Figure 12).

There is another way to adjust the distance between the bottom tangent line of the chamber 2 of the main vessel and the jacket upper tangent.

Double click on the shell tag 31.06 which has P=0 (Figure 13). Observe that it is a non-pressure bearing component (Figure 14):

Figure 13

 

Figure 14

This shell (31.06) is a dummy component whose main function is to separate the chamber 2 from chamber 1. It is NOT used for pressure calculations. There is one more function of this shell (31.06). It acts as a transition piece to connect the shell tag 31.05 of chamber 1 to the shell tag 31.07 of chamber 2. The lower tangent line of chamber 2 ie. the shell 31.07 starts at an elevation of 2500 below the top elevation of shell tag 31.05. Hence the length of 31.06 is -2500 mm (Figure 14). AutoPIPE Vessel automatically creates a non-pressure bearing dummy shell (31.06) when multiple chambers are created. Notice that the shell length -2500 mm is same as the Location field in Geometry tab.

Figure 15

In the length field under shell tag 31.06, change the value from -2500 to -1500. Notice now that the distance between the bottom tangent line of chamber 2 and the top junction of jacket to shell is reduced to 1500 mm.

Figure 16

There is another non-pressure bearing dummy shell (Tag 31.08) which separates the chamber 2 and chamber 3.

Figure 17

Double click and observe that the length is almost ‘0’ (0.01 mm) since it is a dummy shell. You may change this value to ‘0’. Since this is a non-pressure bearing part, it is not calculated as stated above (similar to shell tag 31.06 dummy shell). 

Figure 18

See Also

Bentley AutoPIPE Vessel

Support Solutions and FAQ's

Error Messages

Warning Messages

Calculations