| |
Applies To |
|
|
| |
Product(s): |
AutoPIPE Vessel |
|
| |
Version(s): |
V8i |
|
| |
Area: |
Combinations |
|
| |
Original Author: |
Bentley Technical Support Group |
|
| |
Date Logged & Current Version |
Mar. 2015 33.02.02.04 |
|
Problem:
How to Define Multiple Load Combinations in AutoPIPE Vessel
Solution:
AutoPIPE Vessel provides the ability to define and compute multiple load cases in one .model file. Following are 3 examples of multiple load combinations using the software:
- Towing Case
- Blast case
- Blast and Motion into the same case
Workflow Example 1 – Towing Case
Before defining the multiple Towing load combinations for the model, you will first define a basic horizontal Vessel.
- Select File > New to display the Specification dialog.
- Select Pressure Vessel from the drop-down pick-list, then press OK to display the Pressure Vessel dialog.
- Select Vessel on Saddles, then press OK to display the Vessel Properties dialog.
- Select the Design Conditions tab, then type 0.8 in the Internal Pressure field, then type 210 in the Internal Design Temperature field.
- Select the Geometry tab to review the default geometrical properties of the Vessel.
- Select the Materials tab, then press Apply Default Data, then press OK.
- Double-click anywhere around the Vessel within the 2D Sketcher to display the Vessel Properties dialog.
- Select the Load Conditions tab. Notice the Case drop-down pick-list provides pre-defined load cases provided by AutoPIPE Vessel.

- Towing is not in the list of cases, but can be easily added as a user-defined case. Select User Case 1 from the Case drop-down pick-list, then enable the Compute checkbox to set the combined cases to be generated/calculated and to enable the fields within the Load Conditions tab, then type Towing.

- During towing, wind and motion are applied simultaneously. For this example, the Vessel is empty, at ambient temperature, and has no pressure. Enable the Weight and Load checkboxes for all Accessories on the Vessel, with the exception of Scaffolding.

- Within the Pressures and Temperatures group-box, enable the No Pressure radio button, then enable the Ambient radio button.

- For this model, normal allowable stresses will be used for combined cases except for extreme wind, extreme motion and earthquake. Within the Stresses group-box, enable the Depends on loading radio button.
- To apply a weight factor on the foundation loads, type 1.05 in the Factor on Weight field.

- You will now define the wind loads on equipment. Press Wind to display the Wind dialog.
- Select User Defined from the Code and Standards drop-down pick-list to define a custom wind condition.
- Define a Dynamic Pressure by typing 130 daN/m² in the Baseq0 field.
- Type 1.4 in the Extreme/Normal Wind field to define the Extreme Wind/Normal Wind ratio.

- Press OK.
- Now you will specify information about normal and abnormal waves. Press Motion to display the Motion dialog.
- For this horizontal Vessel, all motion combinations will be calculated. Motion will also be combined with wind. Enable all available checkboxes.

- Define the Normal Conditions and Abnormal Conditions as shown below.

- Press OK.
- Press See Load Combinations to display the Load Conditions Properties dialog.
- Select the Load Combinations tab, which presents a summary of all defined load combinations.

- Notice that 20 load combinations have now been defined. Press OK to return to the Load Conditions tab.

- Press OK.
- Double-click on the Shell within the Components List to display the Component Properties dialog.
- Select the Material tab. Notice that the Towing case has been added.

- Press OK.
- Select Insert > Load to display the Loads dialog. Notice that you can also define Towing loads within this dialog.

- Press OK.
- Select File > Save As to display the Save As dialog, then save your model.
- Perform a strength calculation by selecting Execute > Calculate Strength .
- Once the calculation has completed, select Execute > View Calculation Results .
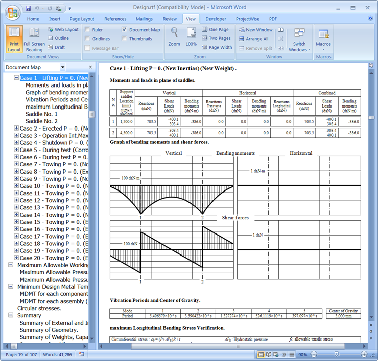
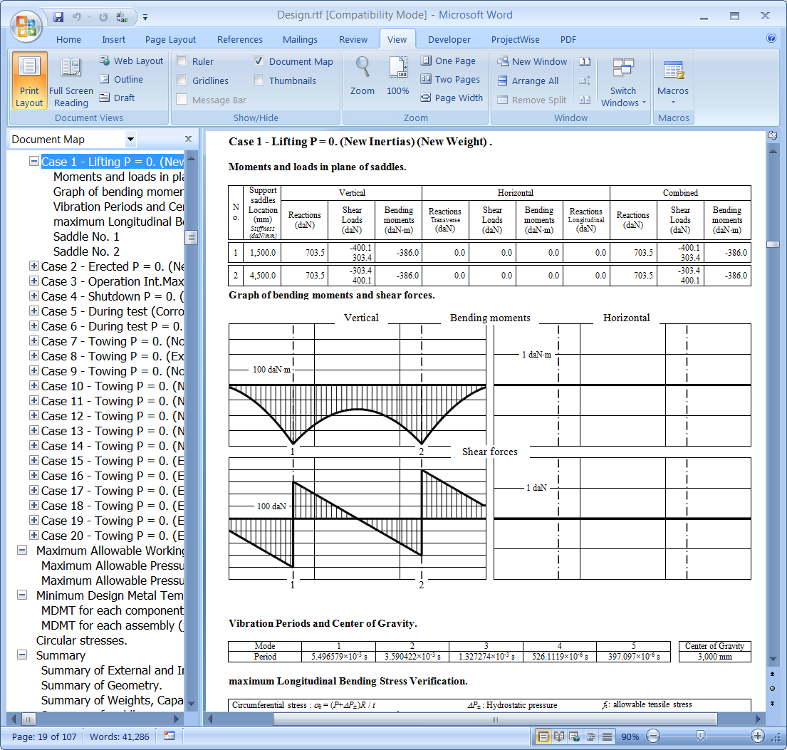
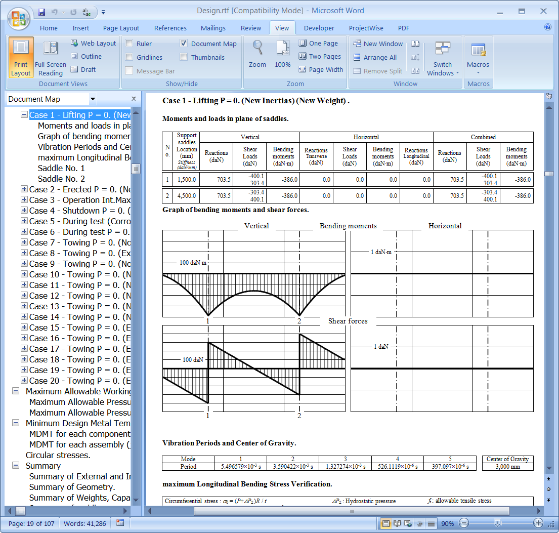
- A full calculation report is generated using the Word Processing Software Executable defined in the Preference Properties dialog (in this example, Microsoft Word). Select the View tab, then enable the Document Map checkbox (or the Navigation Pane checkbox, depending on your version of Microsoft Word).
- From the Document Map (or Navigation Pane), select Case 1 - Lifting P = 0. (New Inertias) (New Weight). The calculations of the first defined Towing load combination are displayed in the calculation report.

- The other defined Towing load combinations are also available within the calculation report.

Workflow Example 2 – Blast Case
(top)
Before defining the multiple Blast load combinations for the model, you will first define a basic horizontal Vessel.
- Select File > New to display the Specification dialog.
- Select Pressure Vessel from the drop-down pick-list, then press OK to display the Pressure Vessel dialog.
- Select Vessel on a Skirt, then press OK to display the Vessel Properties dialog.
- Select the Design Conditions tab, then type 0.8 in the Internal Pressure field, then type 210 in the Internal Design Temperature field.
- Select the Geometry tab to review the default geometrical properties of the Vessel.
- Select the Materials tab, then press Apply Default Data, then press OK.
- Double-click anywhere around the Vessel within the 2D Sketcher to display the Vessel Properties dialog.
- Select the Load Conditions tab, then select Blast from the Case drop-down pick-list.
- Enable the Compute checkbox to set the combined cases to be generated/calculated and to enable the fields within the Load Conditions tab
- Enable the Weight checkbox for Fireproofing, Insulation, Trays, Liquid on Trays, Packing, and Lining accessories.
- Enable the Load checkbox for Insulation accessories.

- To specify a custom pressure value, enable the User Defined radio button, then type 1.3 in the Pressure field.
- To specify a custom temperature value, enable the User Defined radio button, then type 135 in the Temperature field.
- To define a Blast overpressure, type 2.3 in the Overpressure field.

- Define the Vessel as containing liquid by enabling the Liquid checkbox.
- Enable the Corroded Weight checkbox. Corroded Weight means that the thicknesses used to compute the weight will be corroded (so less weight is considered).
- Enable the Corroded Inertias checkbox. Corroded inertia means that the thickness used to compute inertia will be corroded (so less inertia is considered).
- To apply a weight factor on the foundation loads, type 1.05 in the Factor on Weight field.

- Enable the Apply PD5500 A.3.5.1.2 checkbox to calculate the design values of longitudinal compressive stress and external pressure in the cylindrical section.
- For this example, you will not apply extreme wind conditions. Enable the Do Not Apply Extreme Wind checkbox.

- You will now define the wind loads on equipment and other components such as piping and walkway. Press Wind to display the Wind dialog.
- Select User Defined from the Code and Standards drop-down pick-list to define a custom wind condition.
- Define Dynamic Pressures by enabling the User Defined radio button, then define the Level m and Dynamic Pressure as shown below.
- Press OK.
- Press See Load Combinations to display the Load Conditions Properties dialog.
- Select the Load Combinations tab, which presents a summary of all defined load combinations.

- Notice that 5 load combinations have been defined. Press OK to return to the Load Conditions tab.
- Press OK.
- Select File > Save As to display the Save As dialog, then save your model.

- Perform a strength calculation by selecting Execute > Calculate Strength
- Once the calculation has completed, select Execute > View Calculation Results .
- A full calculation report is generated using the Word Processing Software Executable defined in the Preference Properties dialog (in this example, Microsoft Word). Select the View tab, then enable the Document Map checkbox (or the Navigation Pane checkbox, depending on your version of Microsoft Word).
- From the Document Map (or Navigation Pane), expand the Vessel under combination loading - Design case section, then expand the Blast (Corroded inertias) (Corroded Weight) section.
- Select Wind loads – Blast (Corroded inertias) (Corroded Weight). Calculations of the defined Blast wind load combination are displayed in the calculation report.

- The other defined Blast load combinations are also available within the calculation report.
Workflow Example 3 – Blast and Motion into the same case
(top)
Example: Blast and Motion defines accelerations on the same level.
As of AutoPIPE Vessel 46.00.01, it is possible to have two accelerations or more defined per load case. Accelerations must be set at different levels. When accelerations are set at the same level, then the first one is kept, the second is ignored. If accelerations vary at the same location, then another load case must be defined.
Therefore in this case, the Blast and Motion load cases cannot be combined into a single combination because they were defined at the same level with the same acceleration. They would need to be evaluated separately.
If you believe adding multiple accelerations of motion on the same level in the same case would be a valuable feature to be added to the software, suggest to add your Vote to an existing IDEA here. Otherwise, if the IDEA has not been logged, to please add your suggestion. Please be clear and detailed in the IDEA.
See Also
Load Combinations in AutoPIPE Vessel
Bentley AutoPIPE Vessel
