一些符号文字只能选择给定选项,如何设置为手动填写或者修改选项


【问题概述】

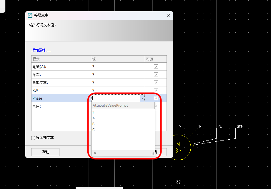
在设计主接线或者二次图纸时,我们经常会用到符号的符号文字(symbol text)来对二维符号的属性进行标示。有时这些符号文字只能在下图所示的下拉框中进行值的选取,而不能像其他的一样进行自由填写,本帖来介绍如何设置符号文字为可填或者可选。

【问题详解】

1.选择设计界面左上角的文件,在设置管理界面选择“选项”-“生命周期管理器设置”-“自定义特性”:

2.选择需要修改的符号文字属性:

3.如需对已有选项进行添加,可以在下方表格上方点击添加:

4.点击应用-确定后,那么图纸中该符号文字就会新增一个选项:

5.如果想要自由填写该符号文字值,则可以在Step2后,将控制类型修改为TEXTBOX:

6.点击应用-确定后,那么图纸中该符号文字就可以支持自由填写: